24小时服务电话:400-697-9948
充换电营业服务电话:400-667-0777

产品特点:
铁芯
所有接纳优质晶粒取向冷轧硅钢片,,,,,全斜无孔绑扎结构,,,,,铁芯为多级蹊径形,,,,,三接缝或五接缝,,,,,空损低、噪音小。。。。唬;;;卷铁芯用专用装备直接卷绕而成,,,,,无接缝、无角重,,,,,镌汰了磁阻,,,,,空损低;;;;;非晶合金变压器铁芯是一种更优质的铁芯质料,,,,,与古板硅钢片相比,,,,,平均降低空损72% ,,,,,空载电流50% 。。。。。
线圈
接纳优质QQ缩醛漆包圆铜线,,,,,无氧铜杆拉制的扁铜钱绕制而成,,,,,其形式有圆筒式、一连式、新型螺旋式、破碎式等,,,,,具有足够的电气强度、机械强度和散热能力。。。。。为了增添变压器的抗短路能力,,,,,可接纳更优质的自粘换位导线。。。。。其接纳自粘缩醛漆包扁线,,,,,绕成线圈后,,,,,经加热漆包扁线之间相互粘合,,,,,形成具有刚性的线圈,,,,,能遭受更大的弯曲应力,,,,,从而增强了变压器的抗短路能力。。。。。自粘换位导线的最大特点是能降低变压器的消耗,,,,,由于多股支解的导体加上换位,,,,,大大的降低了涡流消耗和环流消耗,,,,,能降低绕组热门的温升,,,,,使整个绕组温度漫衍更为匀称。。。。。
油箱
接纳优质钢板焊接而成,,,,,有椭圆型、矩型等结构,,,,,散热元件接纳片式散热器、膨胀散热器或波纹油箱,,,,,油箱在厂内举行可靠的密封试验,,,,,内外外貌经酸洗、磷化处置惩罚后,,,,,举行三底一面油漆喷涂,,,,,既抗侵蚀又雅观大方。。。。。
产品正常使用条件
周围空气温度:
最高气温:+40℃;;;;;
最低气温:-45℃;;;;;
最热月平均气温:+30℃;;;;;
最热年平均气温:+20℃;;;;;
海拔高度:≤1000m;;;;;
腌臜品级:Ⅲ级;;;;;
地动烈度:中国12级标准8级;;;;;
电源电压波形:近似正弦波;;;;;
注:若是凌驾以上使用条件,,,,,请在订货时说明,,,,,以便特殊思量。。。。。
1、S11系列10kV 三相油浸式自冷双绕组无励磁调压配电变压器

| 型号 | 额定容量(kVA) | 典范电压组合(kV) | 联络组标号 | 阻抗电压(%) | 总重(t) | 参考尺寸(mm) | 空载消耗 | 负载消耗 |
| L*W*H | (W) | (W) | ||||||
| S11-30/10 | 30 | 高压H.V. 6,6.3,10,10.5 ±2×2.5% ±5% 低压L.V. 0.4 |
Dyn11 Yyn0 |
4 | 0.35 | 720*480*850 | 100 | 630/600 |
| S11-50/10 | 50 | 0.4 | 750*500*900 | 130 | 910/870 | |||
| S11-63/10 | 63 | 0.5 | 800*600*950 | 150 | 1090/1040 | |||
| S11-80/10 | 80 | 0.55 | 1000*720*980 | 180 | 1310/1250 | |||
| S11-100/10 | 100 | 0.6 | 1050*750*1000 | 200 | 1580/1500 | |||
| S11-125/10 | 125 | 0.7 | 1100*760*1050 | 240 | 1890/1800 | |||
| S11-160/10 | 160 | 0.75 | 1120*770*1070 | 280 | 2310/2200 | |||
| S11-200/10 | 200 | 0.8 | 1150*800*1100 | 340 | 2730/2600 | |||
| S11-250/10 | 250 | 1 | 1300*950*1100 | 400 | 3200/3050 | |||
| S11-315/10 | 315 | 1.2 | 1400*1000*1100 | 480 | 3830/3650 | |||
| S11-400/10 | 400 | 1.4 | 1400*1000*1200 | 570 | 4520/4300 | |||
| S11-500/10 | 500 | 2 | 1700*1200*1400 | 680 | 5410/5150 | |||
| S11-630/10 | 630 | 4.5 | 2.5 | 1800*1300*1500 | 810 | 6200 | ||
| S11-800/10 | 800 | 2.8 | 2150*1950*2000 | 980 | 7500 | |||
| S11-1000/10 | 1000 | 3.2 | 2200*2000*2050 | 1150 | 10300 | |||
| S11-1250/10 | 1250 | 3.7 | 2300*2100*2100 | 1360 | 12000 | |||
| S11-1600/10 | 1600 | 4.5 | 2400*2200*2200 | 1640 | 14500 | |||
| S11-2000/10 | 2000 | 5 | 5.5 | 2500*2400*2300 | 1940 | 18300 | ||
| S11-2500/10 | 2500 | 6.4 | 2700*2600*2500 | 2290 | 21200 |
2、S13系列10kV 三相油浸式自冷双绕组无励磁调压配电变压器

| 型号 | 额定容量 | 典范电压组合(kV) | 联络组标号 | 阻抗电压(%) | 总重(t) | 参考尺寸(mm) L*W*H | 空载消耗 | 负载消耗 |
| (kVA) | (W) | (W) | ||||||
| S13-30/10 | 30 | 高压H.V. 6,6.3,10,10.5 ±2×2.5% ±5% 低压L.V. 0.4 |
Dyn11 Yyn0 |
4 | 0.35 | 720*480*850 | 80 | 630/600 |
| S13-50/10 | 50 | 0.4 | 750*500*900 | 100 | 910/870 | |||
| S13-63/10 | 63 | 0.5 | 800*600*950 | 110 | 1090/1040 | |||
| S13-80/10 | 80 | 0.55 | 1000*720*980 | 130 | 1310/1250 | |||
| S13-100/10 | 100 | 0.6 | 1050*750*1000 | 150 | 1580/1500 | |||
| S13-125/10 | 125 | 0.7 | 1100*760*1050 | 170 | 1890/1800 | |||
| S13-160/10 | 160 | 0.75 | 1120*770*1070 | 200 | 2310/2200 | |||
| S13-200/10 | 200 | 0.8 | 1150*800*1100 | 240 | 2730/2600 | |||
| S13-250/10 | 250 | 1 | 1300*950*1100 | 290 | 3200/3050 | |||
| S13-315/10 | 315 | 1.2 | 1400*1000*1100 | 340 | 3830/3650 | |||
| S13-400/10 | 400 | 1.4 | 1400*1000*1200 | 410 | 4520/4300 | |||
| S13-500/10 | 500 | 2 | 1700*1200*1400 | 480 | 5410/5150 | |||
| S13-630/10 | 630 | 4.5 | 2.5 | 1800*1300*1500 | 570 | 6200 | ||
| S13-800/10 | 800 | 2.8 | 2150*1950*2000 | 700 | 7500 | |||
| S13-1000/10 | 1000 | 3.2 | 2200*2000*2050 | 830 | 10300 | |||
| S13-1250/10 | 1250 | 3.7 | 2300*2100*2100 | 970 | 12000 | |||
| S13-1600/10 | 1600 | 4.5 | 2400*2200*2200 | 1170 | 14500 | |||
| S13-2000/10 | 2000 | 5 | 5.5 | 2500*2400*2300 | 1390 | 18300 | ||
| S13-2500/10 | 2500 | 6.4 | 2700*2600*2500 | 1650 | 21200 |
3.S13-M.RL系列10kV 三相油浸式卷铁心自冷双绕组无励磁调压配电变压器

| 型号 | 额定容量(kVA) | 典范电压组合(kV) | 联络组标号 | 阻抗电压(%) | 总重 (t) |
参考尺寸(m) L*W*H |
空载消耗(W) | 负载消耗(W) |
| S13-M.RL-30/10 | 30 | 高压H.V. 6,6.3,10,10.5 ±2×2.5% ±5% 低压L.V. 0.4 |
Dyn11 Yyn0 |
4 | 0.35 | 0.8*0.7*0.8 | 80 | 630/600 |
| S13-M.RL -50/10 | 50 | 0.45 | 1*0.85*0.95 | 100 | 910/870 | |||
| S13-M.RL -63/10 | 63 | 0.5 | 1.1*0.8*1.2 | 110 | 1090/1040 | |||
| S13-M.RL -80/10 | 80 | 0.58 | 1.1*0.8*1.35 | 130 | 1310/1250 | |||
| S13-M.RL -100/10 | 100 | 0.65 | 1.1*0.8*1.35 | 150 | 1580/1500 | |||
| S13-M.RL -125/10 | 125 | 0.7 | 1.1*0.85*1.4 | 170 | 1890/1800 | |||
| S13-M.RL -160/10 | 160 | 0.8 | 1.1*0.95*1.42 | 200 | 2310/2200 | |||
| S13-M.RL -200/10 | 200 | 0.95 | 1.15*1*1.5 | 240 | 2730/2600 | |||
| S13-M.RL -250/10 | 250 | 1.1 | 1.2*1.1*1.5 | 290 | 3200/3050 | |||
| S13-M.RL -315/10 | 315 | 1.3 | 1.3*1.12*1.5 | 340 | 3830/3650 | |||
| S13-M.RL -400/10 | 400 | 1.45 | 1.35*1.2*1.55 | 410 | 4520/4300 | |||
| S13-M.RL -500/10 | 500 | 1.9 | 1.5*1.3*1.6 | 480 | 5410/5150 | |||
| S13-M.RL -630/10 | 630 | 4.5 | 2.1 | 1.5*1.3*1.7 | 570 | 6200 | ||
| S13-M.RL -800/10 | 800 | 2.5 | 1.55*1.35*1.75 | 700 | 7500 | |||
| S13-M.RL -1000/10 | 1000 | 3 | 1.75*1.5*1.75 | 830 | 10300 | |||
| S13-M.RL -1250/10 | 1250 | 3.5 | 1.8*1.5*1.9 | 970 | 12000 | |||
| S13-M.RL -1600/10 | 1600 | 4.5 | 1.9*1.7*2 | 1170 | 14500 |
4.SH15系列10kV 三相油浸式自冷双绕组无励磁调压非晶合金配电变压器

| 型号 | 额定容量(kVA) | 典范电压组合(kV) | 联络组标号 | 阻抗电压(%) | 总重 (t) |
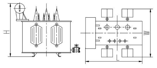
参考尺寸(mm) L*W*H |
空载消耗(W) | 负载消耗(W) |
| SH15-30/10 | 30 | 高压H.V. 6,6.3,10,10.5 ±2×2.5% ±5% 低压L.V. 0.4 |
Dyn11 Yyn0 |
4 | 0.4 | 1000*550*700 | 33 | 630/600 |
| SH15-50/10 | 50 | 0.6 | 1100*600*700 | 43 | 910/870 | |||
| SH15-63/10 | 63 | 0.65 | 1100*650*900 | 50 | 1090/1040 | |||
| SH15-80/10 | 80 | 0.7 | 1150*650*900 | 60 | 1310/1250 | |||
| SH15-100/10 | 100 | 0.65 | 1200*700*900 | 75 | 1580/1500 | |||
| SH15-125/10 | 125 | 0.83 | 1250*950*900 | 85 | 1890/1800 | |||
| SH15-160/10 | 160 | 0.9 | 1300*1100*900 | 100 | 2310/2200 | |||
| SH15-200/10 | 200 | 1 | 1400*1000*900 | 120 | 2730/2600 | |||
| SH15-250/10 | 250 | 1.4 | 1600*1100*950 | 140 | 3200/3050 | |||
| SH15-315/10 | 315 | 1.6 | 1700*1100*970 | 170 | 3830/3650 | |||
| SH15-400/10 | 400 | 1.7 | 1750*1100*1000 | 200 | 4520/4300 | |||
| SH15-500/10 | 500 | 2.3 | 1800*1100*1100 | 240 | 5410/5150 | |||
| SH15-630/10 | 630 | 4.5 | 2.6 | 1900*1100*1100 | 320 | 6200 | ||
| SH15-800/10 | 800 | 2.9 | 2000*1500*1200 | 380 | 7500 | |||
| SH15-1000/10 | 1000 | 3.5 | 2100*1600*1350 | 450 | 10300 | |||
| SH15-1250/10 | 1250 | 4.5 | 2200*1700*1350 | 530 | 12000 | |||
| SH15-1600/10 | 1600 | 6 | 2300*1900*1400 | 630 | 14500 | |||
| SH15-2000/10 | 2000 | 7 | 2400*2000*1700 | 750 | 18300 | |||
| SH15-2500/10 | 2500 | 9 | 2550*2500*1700 | 900 | 21200 |